Details

    • Type: Exterior Panels (8 Weeks) Exterior Panels (8 Weeks)
    • Status: Quotation accepted
    • Priority: Normal Normal
    • Resolution: Unresolved
    • Labels:
      None
    • Plot:
      50
    • Model:
      Mirage
    • Serial:
      AT027336/14
    • Size:
      28x12
    • Status Colour:
      Quotation accepted Quotation accepted
    • Supplier:
      Atlas
    • Ordered By?:
      DT
    • Stock_Number:
      40419
    • Park_Company:
       Harlyn Sands Holiday Park
    • Park_Code:
      HSHP24
    • Park_Contact:
      Vicky
    • Park_Phone:
      01841 520720
    • Park_Postcode:
      PL28 8SQ
    • Satisfaction note signed:
      No
    • Park_Key_Account:
      No
    • SLA: Quote Time to:
    • SLA Status:
    • Quote outcome:
      Accepted
    1. QUOT-4010 (1).pdf
      142 kB
      Duncan Thomson
    1. PER Sent.png
      44 kB
    2. Panel required.jpg
      116 kB
    3. IMG_4662.jpeg
      2.19 MB
    4. IMG_4661.jpeg
      2.30 MB
    5. IMG_4660.jpeg
      2.22 MB
    6. email to park.png
      75 kB
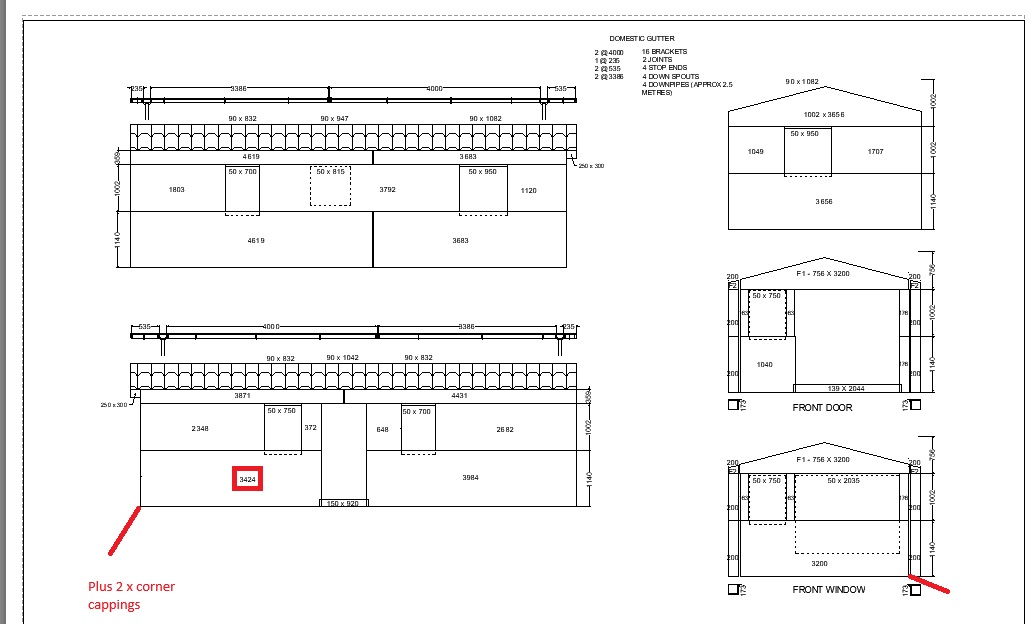
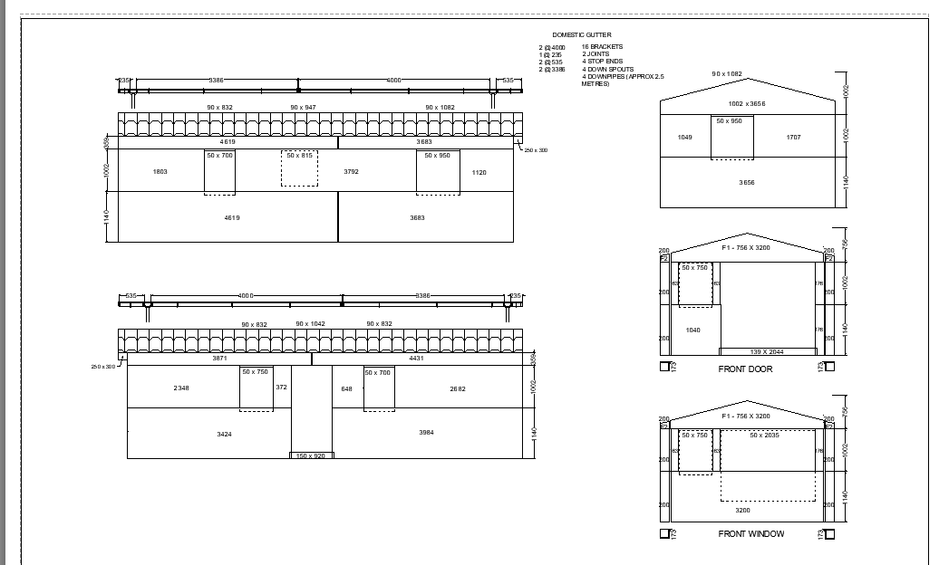
    7. drawing.png
      29 kB
    8. 50 panel claim 3.jpg
      93 kB
    9. 50 panel claim 2.jpg
      90 kB
    10. 50 panel claim.jpg
      92 kB

      Activity

      Hide
      Duncan Thomson added a comment -
      The cost of the panel & corners inc delivery to Surf Bay & VAT will be £579.65
      Show
      Duncan Thomson added a comment - The cost of the panel & corners inc delivery to Surf Bay & VAT will be £579.65
      Hide
      Duncan Thomson added a comment -
      quote sent to park
      Show
      Duncan Thomson added a comment - quote sent to park

        People

        • Assignee:
          Duncan Thomson
          Reporter:
          Duncan Thomson
        • Watchers:
          0 Start watching this issue

          Dates

          • Created:
            Updated: