Details

    • Type: Exterior Panels (8 Weeks) Exterior Panels (8 Weeks)
    • Status: Quotation accepted
    • Priority: Normal Normal
    • Resolution: Unresolved
    • Labels:
      None
    • Plot:
      50
    • Model:
      Mirage
    • Serial:
      AT027336/14
    • Size:
      28x12
    • Status Colour:
      Quotation accepted Quotation accepted
    • Supplier:
      Atlas
    • Ordered By?:
      DT
    • Stock_Number:
      40419
    • Park_Company:
       Harlyn Sands Holiday Park
    • Park_Code:
      HSHP24
    • Park_Contact:
      Vicky
    • Park_Phone:
      01841 520720
    • Park_Postcode:
      PL28 8SQ
    • Satisfaction note signed:
      No
    • Park_Key_Account:
      No
    • SLA: Quote Time to:
    • SLA Status:
    • Quote outcome:
      Accepted
    1. QUOT-4010 (1).pdf
      142 kB
      Duncan Thomson
    1. 50 panel claim.jpg
      92 kB
    2. 50 panel claim 2.jpg
      90 kB
    3. 50 panel claim 3.jpg
      93 kB
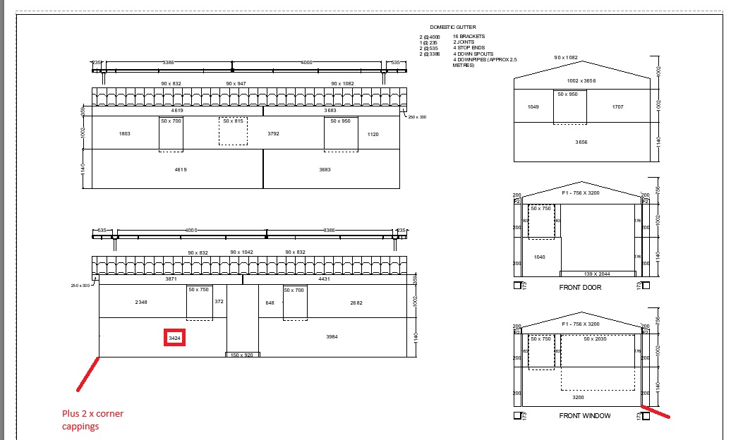
    4. drawing.png
      29 kB
    5. email to park.png
      75 kB
    6. IMG_4660.jpeg
      2.22 MB
    7. IMG_4661.jpeg
      2.30 MB
    8. IMG_4662.jpeg
      2.19 MB
    9. Panel required.jpg
      116 kB
    10. PER Sent.png
      44 kB

      Activity

      Duncan Thomson created issue -
      Duncan Thomson made changes -
      Field Original Value New Value
      Status Open [ 1 ] Assessment Sheet Issued [ 10549 ]
      Assignee Duncan Thomson [ duncan ] Charleen Sibley [ charleen sibley ]
      Duncan Thomson made changes -
      Attachment 50 panel claim 2.jpg [ 388946 ]
      Attachment 50 panel claim 3.jpg [ 388947 ]
      Attachment 50 panel claim.jpg [ 388948 ]
      Attachment IMG_4660.jpeg [ 388949 ]
      Attachment IMG_4661.jpeg [ 388950 ]
      Attachment IMG_4662.jpeg [ 388951 ]
      Duncan Thomson made changes -
      Attachment email to park.png [ 388967 ]
      Duncan Thomson made changes -
      Attachment PER Sent.png [ 389687 ]
      Duncan Thomson made changes -
      Attachment drawing.png [ 390457 ]
      Duncan Thomson made changes -
      Attachment Panel required.jpg [ 390458 ]
      Hide
      Duncan Thomson added a comment -
      The cost of the panel & corners inc delivery to Surf Bay & VAT will be £579.65
      Show
      Duncan Thomson added a comment - The cost of the panel & corners inc delivery to Surf Bay & VAT will be £579.65
      Duncan Thomson made changes -
      Attachment QUOT-4010 (1).pdf [ 391105 ]
      Duncan Thomson made changes -
      Status Assessment Sheet Issued [ 10549 ] Engineer Assessment Scheduled [ 10048 ]
      Assignee Charleen Sibley [ charleen sibley ] Duncan Thomson [ duncan ]
      Plot
      Duncan Thomson made changes -
      Status Engineer Assessment Scheduled [ 10048 ] Awaiting Quote [ 10006 ]
      Duncan Thomson made changes -
      Status Awaiting Quote [ 10006 ] Quotation supplied [ 10007 ]
      Duncan Thomson made changes -
      Status Quotation supplied [ 10007 ] Waiting for Customer [ 10350 ]
      Hide
      Duncan Thomson added a comment -
      quote sent to park
      Show
      Duncan Thomson added a comment - quote sent to park
      made changes -
      Status Waiting for Customer [ 10350 ] Quotation accepted [ 10008 ]
      Quote outcome None [ 12253 ] Accepted [ 12254 ]
      Transition Time In Source Status Execution Times Last Executer Last Execution Date
      Open Open Assessment Sheet Issued Assessment Sheet Issued
      5s 1 Duncan Thomson 11/Sep/24 3:33 PM
      Assessment Sheet Issued Assessment Sheet Issued Engineer Assessment Scheduled Engineer Assessment Scheduled
      41d 1h 20m 1 Duncan Thomson 22/Oct/24 4:54 PM
      Engineer Assessment Scheduled Engineer Assessment Scheduled Awaiting Quote Awaiting Quote
      3m 15s 1 Duncan Thomson 22/Oct/24 4:57 PM
      Awaiting Quote Awaiting Quote Quotation supplied Quotation supplied
      12s 1 Duncan Thomson 22/Oct/24 4:57 PM
      Quotation supplied Quotation supplied Waiting for Customer Waiting for Customer
      7s 1 Duncan Thomson 22/Oct/24 4:57 PM
      Waiting for Customer Waiting for Customer Quotation accepted Quotation accepted
      214d 3h 42m 1 24/May/25 8:40 PM

        People

        • Assignee:
          Duncan Thomson
          Reporter:
          Duncan Thomson
        • Watchers:
          0 Start watching this issue

          Dates

          • Created:
            Updated: