Retrofit
  1. Retrofit
  2. RET-56

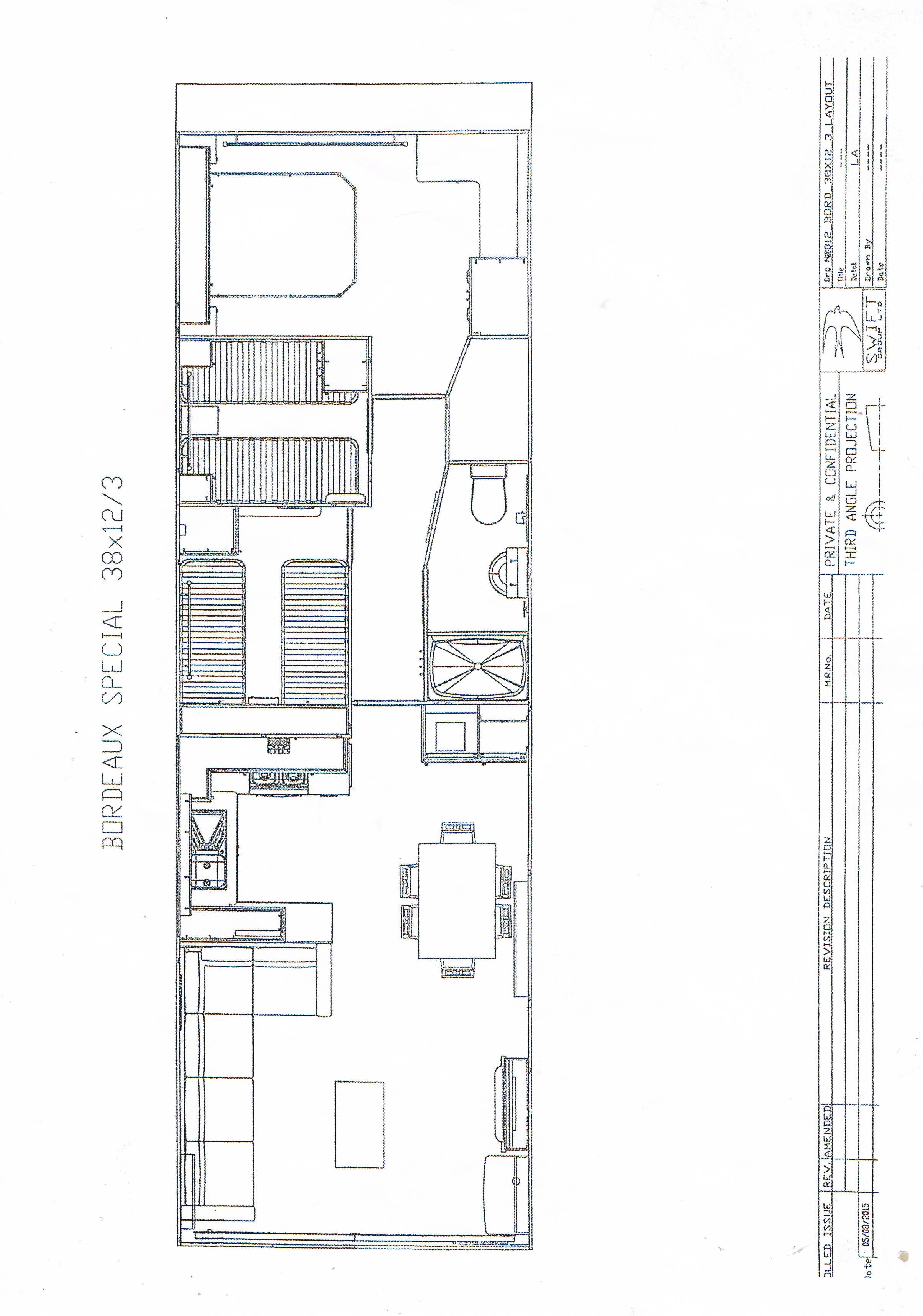
Unit was ordered with the lounge the opposite way round

    Details

    • Type: White Goods White Goods
    • Status: Awaiting Quote
    • Priority: Normal Normal
    • Resolution: Unresolved
    • Labels:
      None
    • Park_Company:
       Braddicks Holiday Centre Ltd
    • Park_Code:
      BRAD01
    • Park_Postcode:
      EX39 1JU
    • Park_Contact:
      Mr G Braddick
    • Park_Email:
      johncooke@braddicks.co.uk
    • Park_Phone:
      01237 473263
    • ID Number:
      0002/00013336 (Arleigh)
    • Order No:
      A67325
    • Model:
      Bordeaux
    • Stock_Number:
      31653
    • Serial:
      020534h
    • Size:
      38x12xx3
    • Status Colour:
      Awaiting Quote Awaiting Quote
    1. update requested.png
      83 kB
    2. purchasing Swift.png
      86 kB
    3. Order update.png
      108 kB
    4. carpets.png
      85 kB
    5. chased .png
      92 kB
    6. address update.png
      90 kB
    7. Update from Duncan.png
      90 kB
    8. CCF15122015_00000.jpg
      753 kB
    9. CCF15122015_00001.jpg
      996 kB

      Activity

      Hide
      Adrienne Barwell (Inactive) added a comment -
      sofas delivered all work complete
      Show
      Adrienne Barwell (Inactive) added a comment - sofas delivered all work complete
      Hide
      Adrienne Barwell (Inactive) added a comment -
      I have checked the Swift connect system and it confirmed that the MCB's have been dispatched and due for delivery to Braddicks at some point today.

      I have left a message for Michael updating him
      Show
      Adrienne Barwell (Inactive) added a comment - I have checked the Swift connect system and it confirmed that the MCB's have been dispatched and due for delivery to Braddicks at some point today. I have left a message for Michael updating him
      Hide
      Adrienne Barwell (Inactive) added a comment -
      I have spoken to Darren to see if he has heard back from Duncan about the sofas, Duncan has advised that he is speaking to the owner of Belfield because he has been unable to get an update from anyone. Darren has advised to leave this with him for the time being.

      I will just chase the electrical boxes
      Show
      Adrienne Barwell (Inactive) added a comment - I have spoken to Darren to see if he has heard back from Duncan about the sofas, Duncan has advised that he is speaking to the owner of Belfield because he has been unable to get an update from anyone. Darren has advised to leave this with him for the time being. I will just chase the electrical boxes
      Hide
      Adrienne Barwell (Inactive) added a comment -
      TV units and pelmets are turning up on the delivery today, Steve is at Site waiting for the delivery.

      Darren has chased Duncan for a date when the sofas will arrive. (Duncan has sent an e-mail complaining about how much pressure I have been putting on the staff at Swift regarding the parts for this unit)

      Michael has called asking for an update, the electrical mcb's have not arrived yet. We need to know when they will be arriving so that we can schedule the electricians.

      Show
      Adrienne Barwell (Inactive) added a comment - TV units and pelmets are turning up on the delivery today, Steve is at Site waiting for the delivery. Darren has chased Duncan for a date when the sofas will arrive. (Duncan has sent an e-mail complaining about how much pressure I have been putting on the staff at Swift regarding the parts for this unit) Michael has called asking for an update, the electrical mcb's have not arrived yet. We need to know when they will be arriving so that we can schedule the electricians.
      Hide
      Adrienne Barwell (Inactive) added a comment -
      Hi,

      We’ve just received the order from Swift for 14 L shaped sofas.

      Can I just confirm the delivery address please? Swift have it as Braddicks Holiday Centre, however I believed it was for Bideford so just wanted to confirm with you.

      Many thanks

      Sarah Collinson
      Operations Liaison Manager


      I have confirmed the address with Belfield, I have asked that she advise when they will be delivering the units so that I can make sure that I have some men there to help unload
      Show
      Adrienne Barwell (Inactive) added a comment - Hi, We’ve just received the order from Swift for 14 L shaped sofas. Can I just confirm the delivery address please? Swift have it as Braddicks Holiday Centre, however I believed it was for Bideford so just wanted to confirm with you. Many thanks Sarah Collinson Operations Liaison Manager I have confirmed the address with Belfield, I have asked that she advise when they will be delivering the units so that I can make sure that I have some men there to help unload

        People

        • Watchers:
          0 Start watching this issue

          Dates

          • Due:
            Created:
            Updated:
            Parts ordered: